尤溪县自然资源局关于福建省纳奇纺织科技有限公司厂区总平面图修改方案的公示
根据福建省纳奇纺织科技有限公司的申请,我局依据《中华人民共和国城乡规划法》、《福建省实施<中华人民共和国城乡规划法>办法》等相关法律、法规的规定,对福建省纳奇纺织科技有限公司提交的福建省纳奇纺织科技有限公司厂区总平面图修改方案进行审查,拟予以审批,现将方案进行公示。相关人员对该方案若有意见或建议的,可于公示之日起10日内向本局书面提出。
特此公示
公示时间:2023年6月21日—2023年6月30日
联 系 人:小傅
联系电话:0598-6308631
联系地址:尤溪县自然资源局 邮编:365100
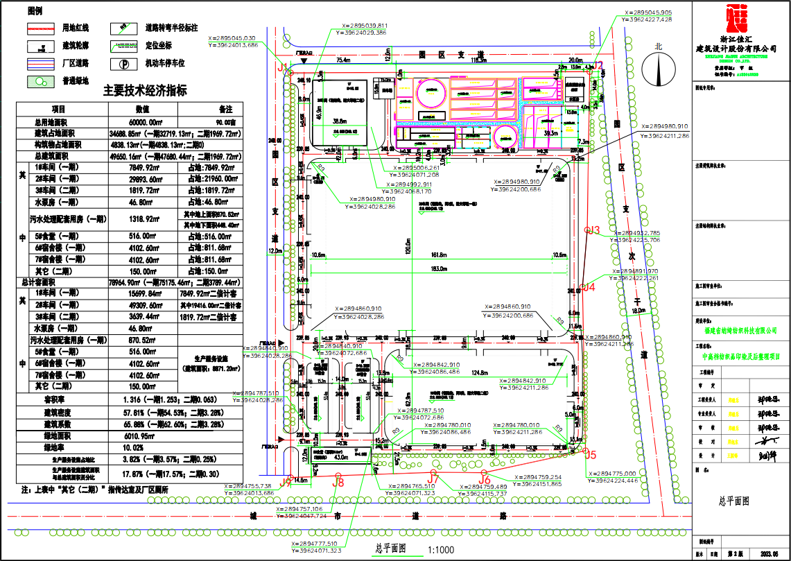
附图:变更前总平面图
变更后总平面图
尤溪县自然资源局
2023年6月21日
扫一扫在手机上查看当前页面


闽公网安备号: